chevron_left
navigate_next

R$ 1.150.000,00

Casa à venda, Marapé - Santos/SP

115,00 m² Área Principal
0 m² Área Lote
3 Quartos
4 Banheiro
2 Vagas
3 Suite

Descrição do imóvel

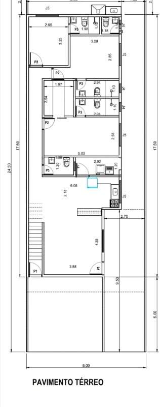
Casa Sobreposta térrea NOVA, com 3 suítes e quintal, no Marapé em Santos
R$ 1.100.000,00 - CPS

Cod: 5112

Maravilhosa casa sobreposta térrea em fase final de construção (entrega ago/25), com espaço externo amplo, quintal em L. com churrasqueira.

Sala 2 ambientes , depósito , 3 suítes sendo 1 master com closet, banheiro externo para praticidade e comodidade ao usufruir o quintal. Área de serviço ampla com acesso ao espaço externo, cozinha conceito aberto.

Imóvel rico em detalhes de revestimento e fino acabamento, Será entregue todo com piso porcelanato. Claro, arejado, ótima distribuição de ambientes.

As vagas de garagem são em linha e com ótimo espaço para estacionar seus carros.
Fachada moderna, para enriquecer o imóvel dos seus sonhos!

Venha conhecer esse imóvel sensacional, novinho e ideal para toda família.

Aceita Financiamento!

A Consultare Imóveis como correspondente bancária, atua para realizar todo o processo de financiamento!

Agende uma visita.

Entre em contato com um de nossos corretores.

Os valores, disponibilidade, itens de mobiliário a serem deixados no imóvel e condições de pagamento estão sujeitos a confirmação com o proprietário, podendo sofrer alterações a qualquer tempo.

Reservamo-nos o direito à correção de possíveis erros e inexatidão.

imóvel

Cód. imóvel: 5112

Valor

R$ 1.150.000,00

Condomínio

R$ 0,01

IPTU

R$ 0,01

Ao informar meus dados, eu concordo com a Política de Privacidade.

Compartilhar nas redes sociais

Imóveis disponíveis para este lançamento

Encontrar imóvel ideal?

Não se preocupe. Deixe seu email e telefone que um especialista irá te ajudar.

Ao informar meus dados, eu concordo com a Política de Privacidade.

Calendário
WhatsApp